Dining Pavilion

The brief for this project initially set strict constraints: volumes had to be organized on a 13.5 by 13.5 inch base and could not exceed 13.5 inches in height. In response, I created six rectangular volumes, arranged to read as a precariously balanced composition. The overall figure is symmetrical yet the volumes achieve balance through irregular offsets.

This massing was then reorganized into a void model. The void model was produced through as few operations as possible, which entailed the extrusion of select solids along the horizontals of the space, as well as the scaling of pieces to maintain overall proportionality. A key interest was exploring voids that alternate vertically through the space in a manner akin to lightwells in buildings.

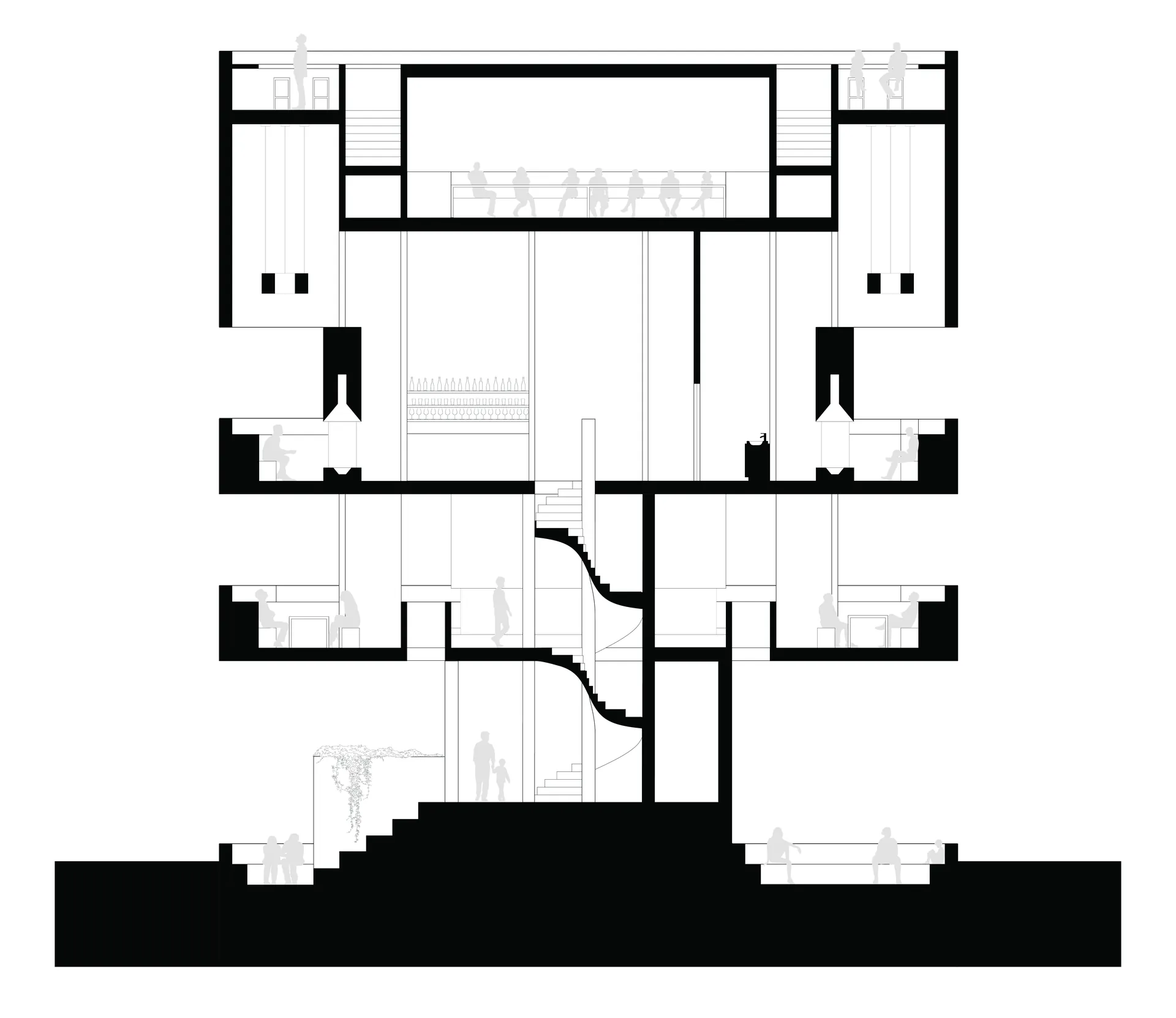
This logic translated directly into a pavilion proposal for a dining and lounging structure for the FIFA World Cup, prospectively hosted in Toronto. The scheme was developed at a proposed height of 54 feet and modeled at 1/4 inch = 1 foot.

Within the pavilion, circulation is held in a central core, while the perimeter of the floor plates supports dining and lounging. An outer terrace provides panoramic views and includes a bar. Fire pits are distributed across levels to support gathering and the ground plane is excavated to allow for landscaping and additional lounging areas. While the overall massing of the pavilion is rectilinear, a language of curves is introduced in plan to disrupt the rectilinearity while maintaining visual structure.

pavilion1

Pavilion (Half of Sectional Model) , plaster, wood, PLA, 6.75” x 13.5” x 13.5” 2025

pavilion 1

Mass and Void Models , museum board, acrylic, 13.5” x 13.5” x 13.5” (each), 2025

pavilion 2

pavilion 4

Ground Floor

pavilion 5

+1

pavilion 6

+2

pavilion7

+3

pavilion8

Section A-A'

pavilion9

Section B-B'